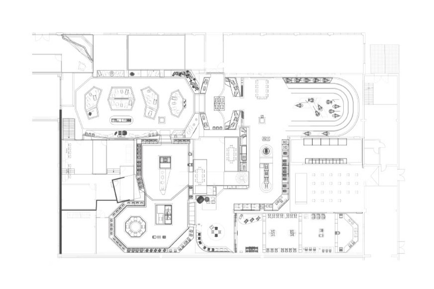
Cybex Campus Showroom — Bayreuth, DE
Co-designer for a 2,500 m² headquarters showroom integrating product presentation, academy, event, prototype and innovation zones, plus a VIP client lounge. Scope included layout development, material strategy, and technical documentation, with full involvement from zoning and master planning through detail design and Twinmotion visualization. Facilitated cross-disciplinary coordination to deliver a complex multi-program environment on time and on budget. Winner of the 2022 iF Design Award.







