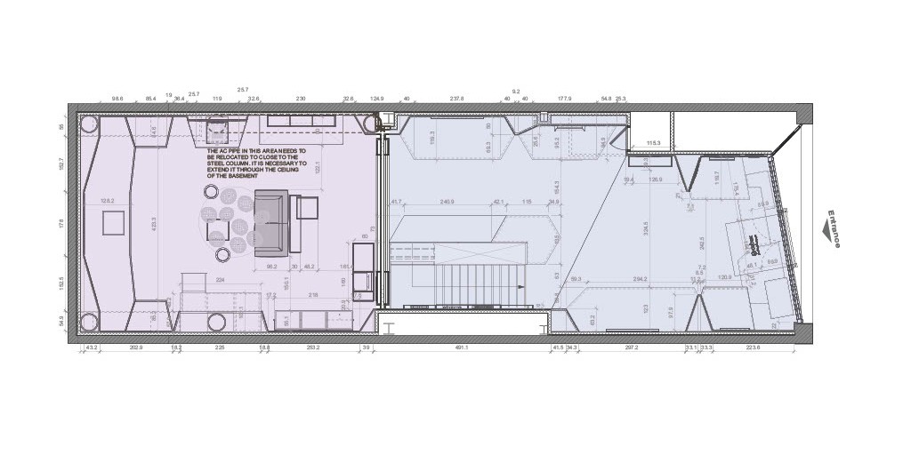
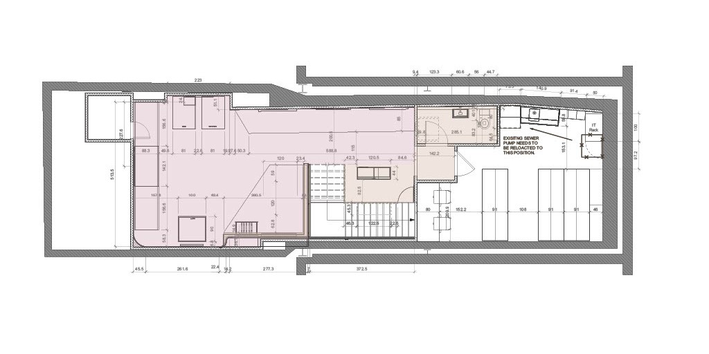
Cybex Flagship — Amsterdam, NL
Co-Designer for a 209 m² flagship retail concept inside a 19th-century building. Directed the process from concept design through renderings, BIM documentation, and construction supervision, with emphasis on material selection, spatial storytelling, and customer journey design. Delivered an immersive environment structured in four experiential zones. Winner of the 2023 iF Design Award.







